Cookies 🍪

Diese Website verwendet Cookies, die Ihre Zustimmung brauchen.

Wohnen am Markt

Für Sie entstehen 44 Wohnungen in der Bramscher Innenstadt.

Bramsche

Stadtzentrum

Objektart

Wohn- und Geschäftshaus

Wohnfläche

60 – 194 m²

Vermarktungsart

Kauf

Das Wichtigste auf einen Blick:

  • 44 Wohneinheiten mit Wohnungsgrößen von 60 – 194 m²   

  • Hohe Energieeffizienz KfW 40 +   

  • Panoramaaufzug   

  • Modernes Energiekonzept mit Photovoltaik, Erdwärmepumpe und E-Ladesystem 

  • Tiefgaragen- sowie Carport- und Fahrradstellplätze   

  • Barrierearm und teils barrierefrei   

  • Provisionsfrei direkt vom Bauträger   

  • Briefkasten- und Videosprechanlage mit Kommuniktaions-Modul

Hier ist das Leben - Wohnen am Markt

Das Zentrum der Tuchmacherstadt Bramsche ist ein attraktiver Wohnort für alle, die sich nicht zwischen Stadt und Land entscheiden möchten. Wir realisieren für Sie ein zu-kunftsorientiertes, viergeschossiges Wohn- und Geschäftshaus, das Ihren Ansprüchen an ein modernes und nachhaltiges Wohnen sicherlich gerecht wird.

Freuen Sie sich auf die zeitlose Architektur, einen hohen Wohnkomfort, zukunftsweisende Technologien und eine hochwertige Ausstattung. Unterschiedliche Wohnungstypen mit attraktiven Grundrissen bieten abwechslungsreichen Wohnraum für Jung und Alt.

Zu den besonderen Highlights gehört der hohe Energiestandard KFW 40+, der u.a. durch nachhaltige Baustoffe, eine Photovoltaikanlage und Erdwärmepumpenerreicht wird. An den Tiefgaragenstellplätzen können auf Wunsch Wall-Bo-xen für die E-Mobilität installiert werden. Und wenn Sie einfach aufs Auto verzichten wollen, sind Sie mit dem Fahrrad entlang der Hase schnell im Umland oder zu Fuß direkt vor der Haustür mitten im Leben.

Austattungsmerkmale & Details

Modern und behaglich zugleich.

Wohnen am Markt bietet Ihnen attraktiven Wohnkomfort durch zahlreiche Vorzüge. Für alle Ansprüche und Bedürfnisse bieten wir den passenden Grundriss. Die Wohnungen werden durch bodentiefe Fenster mit viel Licht durchflutet. Der Einsatz von hochwerti­gen Materialien bei der gesamten Ausstattung sorgt für Behaglichkeit. Die Fußboden­heizung, Vinyl-Böden in eleganter Holzoptik, die Bad-Ausstattung namhafter Hersteller, wertige Fliesen und qualitätsvolle Elektroinstallationen schaffen erstklassigen Komfort. Eine Wohnraumlüftung mit Wärmerückgewinnung sorgt für gute Luftqualität und verhindert Schimmelbildung und Wärmeverluste. Die Wohnungen sind barrierearm und teilweise barrierefrei. Mit behindertengerechtem Aufzug sind alle Wohneinheiten stufenlos zugänglich. Großzügige Balkone und Loggien laden auf eine Tasse Tee oder Kaffee im Freien ein. Im Innenhof befinden sich neben den fünf über­dachten Carportstellplätzen auch die eingehausten Fahrradstellplät­ze mit genügend Kapazitäten für alle Bewohnerinnen und Bewohner.

Energetisch am Puls der Zeit.

Wohnen am Markt bedeutet auch, Verantwortung für die Umwelt zu übernehmen. Ein großer Vorteil unseres Wohnungsbauprojekts ist die besonders hohe Ressourceneinsparung durch den Energiestandard KfW 40+ in Kombination mit einer Versorgung durch erneuerbare Energien. Photovoltaik und Erdwärmepumpen ermöglichen konstant niedrige Strom- und Heizkosten - unabhängig von schwankenden Rohstoffpreisen und fossilen Brennstoffen. 70 % der benötigten Energie des errechneten Energiebedarfs wird durch die PV-Anlage erzeugt. Der nachhaltige Wohnstandard unterstützt auch die E-Mobilität mittels intelligenter Ladesysteme für Elektroautos, sofern Sie es wünschen. Gemeinsam mit unserem Partner, den Stadtwerken Bramsche, wird ein Energiecontracting betrieben. Die gesamte Wärmeerzeugungsanlage inkl. PV-Anlage und der zugehörige Speicher verbleiben im Eigentum der Stadtwerke Bramsche und bedürfen keiner Pflege oder regelmäßiger Wartung durch Sie. Die Stadtwerke werden für alle Bewohner des Hauses einen Sondertarif anbieten. Via App können Sie sowohl die Leistung der PV-Anlage als auch den gesamten Stromverbrauch des Hauses und Ihren eigenen Stromverbrauch innerhalb der Wohnung einsehen. Das sogenannte Energiemonitoring ist eine komfortable Möglichkeit, Ihren Verbrauch im Blick zu behalten.

Lage

Zuhause im Herzen der Stadt

Die vorteilhafte Lage mitten im Zentrum von Bramsche ist nur einer der vielen Pluspunkte von Wohnen am Markt. Zahlreiche Einkaufsmöglichkeiten, Gastronomieangebote, medizinische Versorgung sowie öffentliche Einrichtungen wie Schulen und Museen befinden sich vor Ort. Ebenfalls fußläufig erreichbar ist der Busbahnhof direkt vor der Tür, der für Berufspendler und Reisebegeisterte ein unverzichtbarer Faktor ist. Im Herzen von Bram-sche befinden Sie sich mitten im Geschehen des städtischen Ireibens, sodass das

Wohnen am Markt nie seinen Reiz verliert.

Zwischen Bahnhof, Tuchmachermuseum und Hasesee mit seinem hohen Erholungswert gibt es allerlei Möglichkeiten zur Freizeitgestaltung. Ob Kulturprogramm und Stadtbummel im historischen Stadtkern mit seinen malerischen Fachwerkhäusern oder Outdooraktivitäten in den umliegenden Naturlandschaften des Osnabrücker Landes - Wohnen am Markt wird Sie mit Vielfalt und Wohnqualität über-

Weitere Infos

Ärztliche Versorgung
Einkaufsmöglichkeiten
Stichpunkt 3 x
Parkplätze x
Stichpunkt 5 100
Stichpunkt 6 22

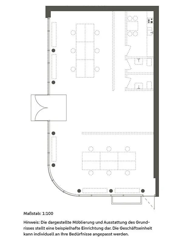
Arbeiten am Markt

Neben den 44 Wohneinheiten bieten wir im Erdgeschoss eine exklusive Geschäftseinheit. Mit einer großzügigen Fläche von 160 m2 haben Sie vielseitige Nutzungsmöglichkeiten: Ob Büro- oder Verkaufsfläche, Praxis, Kanzlei oder Showroom - hier können Sie Ihr Gewerbe an einem attraktiven Standort betreiben. Die zentrale Lage garantiert eine maximale Erreichbarkeit und Aufmerksamkeit für Ihr Geschäft. Mit optimaler Sichtbarkeit und hoher Fußgängerfrequenz werden hier ideale Bedingungen geschaffen. Die flexible Raumaufteilung ermöglicht es Ihnen, die Fläche an Ihre individuellen Bedürfnisse anzupassen. Drei exklusiv zur Geschäftseinheit gehörige Außenstellplätze für Mitarbeitende oder Kunden befinden sich in Richtung Marktplatz.

Fordern Sie sich das Exposé für unser Bauvorhaben Wohnen am Markt an.

Anrede
Herr
Frau
Firma
Familie
Eheleute
Erbengemeinschaft
Vorname *
Name *
Straße
Ort
Plz
E-Mail *
Telefon
Ich bin in der Regel erreichbar
Vormittags
Nachmittags
Abends
Ihre Nachricht
*

Ich bin damit einverstanden, dass meine Daten im Rahmen dieser Anfrage an die VVB Immobilien GmbH weitergeleitet werden.

Die vorstehend erhobenen personenbezogenen Daten werden nur für diese Korrespondenz mit Ihnen und zu dem Zweck verarbeitet, zu dem Sie uns die Daten jeweils im Rahmen dieser Kommunikation überlassen haben - zum Beispiel zur Bearbeitung Ihrer Anfragen einschließlich etwaiger Anschlussfragen oder um auf Ihren Wunsch mit Ihnen Kontakt aufzunehmen. Grundlage dieser Verarbeitung Ihrer personenbezogenen Daten ist Art. 6 Abs. 1 S. 1 lit. b) DSGVO, soweit Sie diese personenbezogenen Daten zwecks Anbahnung eines Vertragsverhältnisses mit uns eingeben oder ein Vertragsverhältnis mit der Vereinigte Volksbank eG Bramgau Osnabrück Wittlage bereits besteht. Nur in diesem Fall ist die Eingabe von personenbezogenen Daten erforderlich im Sinne von Art. 13 Abs. 2 e) DSGVO. Andernfalls erfolgt diese Speicherung und Verwendung aufgrund von Art. 6 Abs. 1 S. 1 lit. f) DSGVO, wobei unser berechtigtes Interesse die sorgfältige Bearbeitung Ihres Anliegens ist. Wir löschen Ihre diesbezüglichen Daten, wenn der Zweck, zu dem Sie uns Ihre Daten mitgeteilt haben, erfüllt oder erledigt ist und wir nicht aus gesetzlichen Gründen zur weiteren Speicherung berechtigt oder verpflichtet sind. Bitte beachten Sie auch unseren Datenschutzhinweis.